Tank Rental

OFFICIAL AGENT

We are the official agent for FC Chemlog Solutions, offering ISO Tank Freight Management Services within Asia. FC Chemlog Solutions Incorporated in Singapore from 2012, with ISO Tank and Bulk Chemical Logistics, NVOCC & Freight Forwarding Businesses, with Internationals Overseas Network in Asia, India & Pakistan.

FC CHEMLOG SOLUTIONS

Products and Service

  • Our fleet of 2,300 Freight ISO Tanks containers
  • We Handled Chemicals under IMO classes 3, 2, 6.1, 5.1 & 9
  • A wide-reach of transportation network with well-established local contacts
  • Flexi-bag – Single layer Polypropylene(PP) woven outer and 4 layers of Polyethylene(PE) inner liners
  • 24/7 Emergency Response Team and Trans

FC CHEMLOG SOLUTIONS

Key Selling Points

  • Our High-Profiled Clients Includes BASF, Chevron-Philip &
    Eastman
  • We offer Local Transportation, Drumming, Warehousing,
    and ISO Tank freight in Asia
  • Emergency Preparedness and Response Plan to Handle any Emergency
  • Experienced Logistics provider of bulk liquid transport in ISO intermodal tank container
  • We Deliver Your Cargo Safely and Efficiently from Cargo Door-to-Door
  • Continually Invest in new tank containers as part of our
    growth strategy

FC CHEMLOG SOLUTIONS

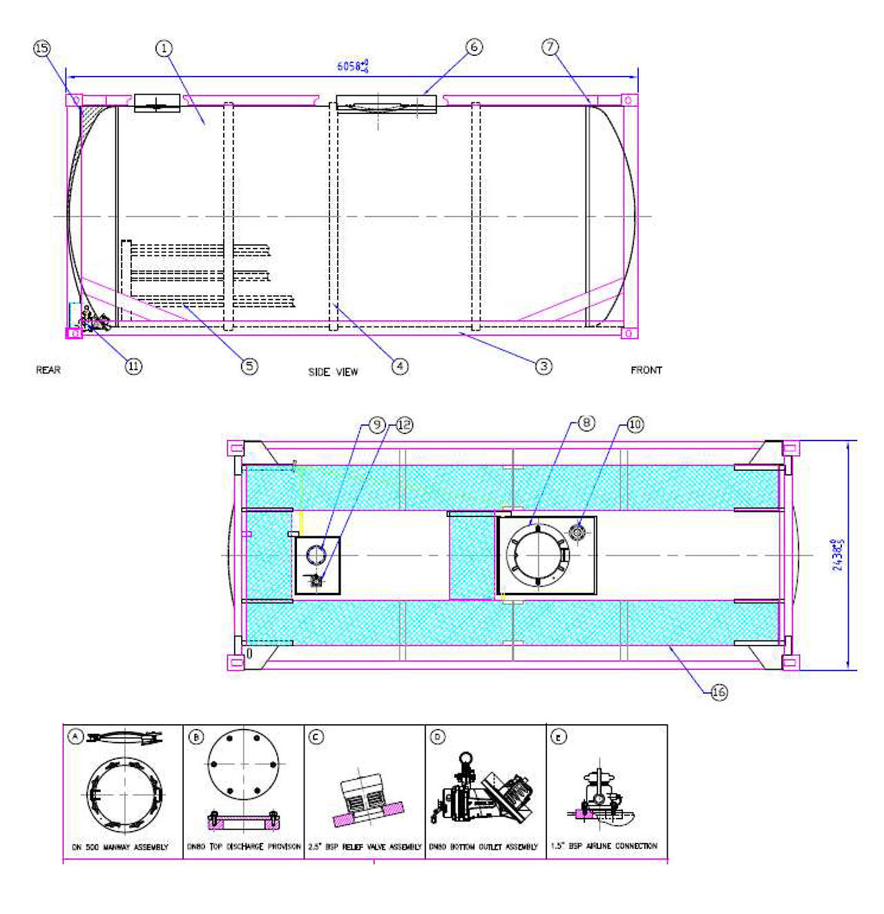
ISO Container Specifications

OUR FLEET

Gallery